HEP El-To Zagreb

Location: Zagreb, HR

Area: 12.130 m²

Year: 2018 building permit

Client: Hrvatska Elektroprivreda d.d.

Type: Business

HEP El-To Zagreb
HEP El-To Zagreb

Elektrana Toplana is a business & research facility of the Croatian Electric Power Industry planned as part of the EL-TO Zagreb West plant.

Elektrana Toplana is a business & research facility of the Croatian Electric Power Industry planned as part of the EL-TO Zagreb West plant.

HEP El-To Zagreb
HEP El-To Zagreb

HEP El-To Zagreb
HEP El-To Zagreb

It is part of a large investment in the modernization of the production process of the leading Croatian energy company with the aim of improving and optimizing production.

It is part of a large investment in the modernization of the production process of the leading Croatian energy company with the aim of improving and optimizing production.

HEP El-To Zagreb
HEP El-To Zagreb

HEP El-To Zagreb
HEP El-To Zagreb

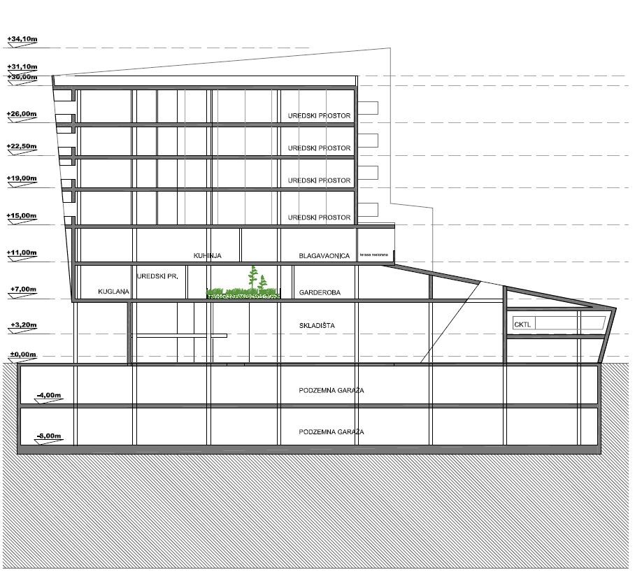
The building itself consists of 8 floor above ground and four underground floors. In the lower part, which is wrapped in the metal sheet, there are quality control laboratiries and a customer center. In the upper volume there are office spaces and administration spaces.

The building itself consists of 8 floor above ground and four underground floors. In the lower part, which is wrapped in the metal sheet, there are quality control laboratiries and a customer center. In the upper volume there are office spaces and administration spaces.